Gepflegte 3-Zimmer Wohnung in Weinstadt
Beschreibung:
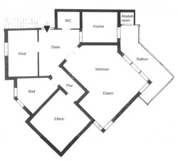
Sehr gepflegte 3-Zimmer Wohnung im 1.OG (Hochparterre) eines 8-Familienhauses in Weinstadt-Endersbach.Die Wohnung ist mit Laminat und Fliesen im Bad, WC und Küche ausgestattet. Das Tageslichtbad verfügt über eine Dusche, Wanne, WC und Waschmaschinenplatz. Ein Gäste WC steht auch zur Verfügung. Vom Wohn-Essbereich gelangt man auf den überdachten Balkon mit Abstellraum. Die Einbauküche mit elektrischen Geräten kann von den Vormietern kostenfrei übernommen werden. Im Haus ist Kabelanschluß.
Die Wohnung wird dem Mieter frisch in weiß gestrichen übergeben.
Eine reine Wohnungskatze als Haustier ist erlaubt.
Im Untergeschoss ist der Tiefgaragenplatz (60,-), der Kellerraum, der Trockenraum und der Fahrradraum.
Die Reinigung des Außenbereichs erledigt eine Firma.
Die Wohnung kann ab 01.10. oder 01.11.2024 gemietet werden.
Lagebeschreibung:
Zur S-Bahn ca. 7 Minuten und zur Einkaufsstraße ca.5 Minuten zu Fuß. Kurzer Weg zur B 29.Ausstattung:
Energieausweis:
- A+
- A
- B
- C
- D
- E
- F
- G
- H
- Endenergieverbrauch:
- 113 kWh/(m²a)
- Energieausweis:
- Verbrauchsausweis
- Energieeffizienzklasse:
- D
- Energieausweis gültig bis:
- 21.10.2028
- wesentlicher Energieträger:
- Gas
- Baujahr lt. Energieausweis:
- 1986
Sonstige Angaben:
Rechtshinweis:Da wir Objekte nicht selbst ermitteln, übernehmen wir hierfür keine Gewähr.
Sämtliche Angaben in diesem Exposé basieren auf Informationen, die uns vom Eigentümer/Vermieter genannt wurden. Wir bemühen uns, möglichst vollständige und richtige Angaben zu erhalten und weiterzuleiten. Eine Haftung für Richtigkeit und Vollständigkeit können wir jedoch nicht übernehmen.








