Neuwertiges Einfamilienhaus in traumhafter Lage, energetisch auf Top-Niveau
Beschreibung:
Neuwertiges, freistehendes Einfamilienhaus in traumhafter Hanglage in Reichenbach an der Fils.In sehr ruhig gelegener Süd-West-Lage bietet diese schmucke Immobilie eine durchdachte und toll zugeschnittene Raumaufteilung.
Die Immobilie ist aus dem Baujahr 2017 und befindet sich in einem top gepflegten Zustand. Zeitraubende und kostspielige Renovierungs-Arbeiten sind somit kein Thema mehr. Einziehen und wohlfühlen!
Die offene Küche sowie der daran anschließende offene Wohn-und Essbereich bieten Ihnen täglich ein tolles und modernes Wohnerlebnis. Und über den Zugang zum großzügigen Balkon erlangen Sie einen traumhaften Blick über das Tal und die dahinterliegenden Ortschaften auf den Bergen - sowohl bei Tag als auch zu Abendstunden ein Genuss.
Eine Garage mit elektrischem Torantrieb ist im Verkaufspreis bereits mit enthalten!
Energetisch ist die Immobilie auf dem neusten Stand:
Energie-Klasse A+, Luft-Wasser-Wärmepumpe, dreifach verglaste Fenster und Dämmung des Gebäudes sind nur einige Highlights.
Die Luft-Wasser-Wärmepumpe wurde zuletzt im Mai 2023 gewartet und befindet sich im einwandfreien Zustand.
Alle Räume sind mit Fußbodenheizung ausgestattet.
Glasfaser steht zur Verfügung und kann bei Wunsch über Dienstleister aktiviert und genutzt werden - interessant auch für Home-Office-Nutzer.
Zudem verfügt die Immobilie mit ca. 2,40 m über eine außergewöhnlich hohe Kellerraumhöhe im Untergeschoss. Über einen separaten Gartenzugang sind die Wohn- und Nutzräume im Untergeschoss unabhängig erreichbar.
Der tageslichtdurchflutete Wohnraum im Untergeschoss verfügt über eine geräumige Terrasse mit wunderbaren Blick ins Tal.
Eine Wellness-Dusche mit Tageslicht, ein geräumiger Hobbyraum sowie ein Wasch- und Technikraum runden das großzügige Raumangebot im Untergeschoss ab.
Mit nur ca. 350 m Entfernung zum Waldrand bietet Ihr neues Zuhause auch einen hohen Naherholungsfaktor. Ausgiebigen Spaziergängen in der Natur mit guter Luft und tollen Aussichten steht nichts mehr im Wege :)
Lagebeschreibung:
Reichenbach an der Fils mit ca. 9.000 Einwohnern liegt nur ca. 12 km von Esslingen (ca. 95.000 EW) und ca. 25 km von Stuttgart entfernt im schönen Filstal im Vorland der schwäbischen Alb.Mit der Filstalbahn gelangen Sie nach Ulm oder Stuttgart. Sehr verkehrsgünstig ist auch die Verbindung über die B10.
Zahlreiche Kindergärten, eine Grund-und Hauptschule sowie eine Realschule sind im Ort.
Sehr gute Einkaufsmöglichkeiten und ärztliche Versorgung für den täglichen Bedarf.
Ausstattung:
Energieausweis:
- A+
 - A
 - B
 - C
 - D
 - E
 - F
 - G
 - H
 
- Baujahr Objekt:
 - 2017
 - Endenergiebedarf:
 - 19 kWh/(m²a)
 - Energieausweis:
 - Bedarfsausweis
 - Energieeffizienzklasse:
 - A+
 - wesentlicher Energieträger:
 - Luft/wasser Wärmepumpe
 - Baujahr lt. Energieausweis:
 - 2016
 
Ausstattungsbeschreibung:
Erdgeschoss:- grosszügiger Eingangsbereich
- separates Tageslicht-WC
- offene Küche mit EBK
- offener Wohn-Essbereich mit Zugang zum Süd-Balkon mit Markise
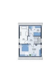
Obergeschoss:
- Tageslicht-Badezimmer mit Doppel-Waschbecken, bodentiefer Dusche, Wanne und WC
- Kinder/Arbeitszimmer
- geräumiges Schlafzimmer
- Zugang zum Dachstuhl über Luke im Dach mit eingebauter Klapptreppe
Untergeschoss:
- separater Hauszugang
- Wohn-/Arbeits-/Schlafzimmer mit Zugang zur überdachten Terrasse
- separates WC
- separate Wellness-Dusche
- großzügiger Hobbyraum
- Technik/Waschmaschinenraum
- großzügiger Eingangsbereich mit Raum für z.B. zusätzlichen Kühlschrank, Schranksysteme etc.
Weitere Angaben:
- im gesamten Haus sind Fliesen mit Fußbodenheizung
- Luft-Wasser-Wärmepumpe
- Wohnraumlüftungsanlage mit Wärmerückgewinnung
- Garage mit elektr. Torantrieb inkl. zwei Sendern)
- Sehr schöne und gepflegte Außenanlage mit Vorgarten
- gedämmte Dachbühne
- Kelleraußenwand gedämmt
- ruhige und sehr gepflegte Nachbarschaft
Sonstige Angaben:
Rechtshinweis:Da wir Objekte nicht selbst ermitteln, übernehmen wir hierfür keine Gewähr.
Sämtliche Angaben in diesem Exposé basieren auf Informationen, die uns vom Eigentümer/Vermieter genannt wurden. Wir bemühen uns, möglichst vollständige und richtige Angaben zu erhalten und weiterzuleiten. Eine Haftung für Richtigkeit und Vollständigkeit können wir jedoch nicht übernehmen.
Sie wollen mehr erfahren?
Wenn Sie uns eine Nachricht über das Kontaktformular senden, melden wir uns schnellstmöglich bei Ihnen:

										




























