Schönste Wohngegend Stuttgarts sucht neue Eigentümer
Beschreibung:
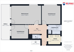
"Idyllische 3,5-Zimmer-Wohnung mit herrlicher Aussicht in Sillenbuch"Die charmante 3-Zimmer-Eigentumswohnung befindet sich in der begehrten Gegend von Sillenbuch, einem malerischen Stadtteil in Stuttgart. Die Lage bietet eine ideale Kombination aus städtischem Komfort und natürlicher Schönheit.
Diese einzigartige Wohnung bietet somit nicht nur ein behagliches Zuhause, sondern auch eine erstklassige Anbindung an alle Annehmlichkeiten des täglichen Lebens sowie vielfältige Freizeitmöglichkeiten in einer reizvollen Umgebung.
Das Exposé beschreibt eine Wohnung mit einer Öl-Zentralheizung, doppelt isolierverglasten Kunststofffenstern mit Rollläden, und Naturholztüren.
Die Wohn-/Schlafräume und der Flur sind mit Parkett und Teppichböden ausgestattet, während das Badezimmer mit separaten Dusche gefliest ist.
Ein Waschmaschinenanschluss befindet sich in der Waschküche.
Der Wohn-/Essbereich ist groß, hell und bietet Zugang zu einem geräumigen und geschützten Sonnenbalkon.
Die Wohnung umfasst ein Wohn-/Esszimmer mit Balkon, eine Küche inkl. Einbauküche, zwei Abstellräume, zwei Schlafzimmer, ein Badezimmer mit Tageslicht und ein separates WC.
Lagebeschreibung:
Bildungseinrichtungen:Familien mit Kindern profitieren von der Nähe zu erstklassigen Bildungseinrichtungen, darunter Kindergärten und Schulen, die bequem zu Fuß oder mit dem Fahrrad erreichbar sind.
ÖPNV und Verkehrsinfrastruktur:
Die Anbindung an den öffentlichen Nahverkehr ist hervorragend, mit Bushaltestellen in unmittelbarer Nähe und der U-Bahn-Station (U7, U8 und U15)
U-Bahn Silberwald oder Sillenbuch, beide in bequemer Reichweite. Zudem ist die Anbindung an das Straßennetz optimal, was Pendler und alle, die die Stadt erkunden möchten, gleichermaßen schätzen werden.
Medizinische Versorgung:
Für medizinische Versorgung ist bestens gesorgt, mit Arztpraxen und Apotheken in der Umgebung sowie dem nahegelegenen Krankenhaus.
Einkaufsmöglichkeiten und Nahversorgung:
Einkaufsmöglichkeiten für den täglichen Bedarf sind in unmittelbarer Nähe vorhanden, darunter Supermärkte, Bäckereien und weitere Geschäfte.
Naherholung und Topografie:
Die Umgebung besticht durch ihre grüne und idyllische Atmosphäre. Streuobstwiesen und malerische Fahrradwege laden zu erholsamen Spaziergängen und Aktivitäten im Freien ein. Zudem befindet sich ein Freibad in direkter Nähe, was an warmen Tagen für erfrischende Entspannung sorgt.
Freizeit- und Kultureinrichtungen:
Für kulturelle Unternehmungen stehen diverse Einrichtungen zur Verfügung, darunter Museen, Theater und weitere kulturelle Angebote, die leicht erreichbar sind.
Sporteinrichtungen:
Sportbegeisterte finden in der Umgebung vielfältige Möglichkeiten zur Ausübung verschiedener Sportarten, sei es in nahegelegenen Fitnessstudios oder auf den umliegenden Sportanlagen.
Ausstattung:
Energieausweis:
- A+
- A
- B
- C
- D
- E
- F
- G
- H
- Baujahr Objekt:
- 1976
- Endenergiebedarf:
- 143,1 kWh/(m²a)
- Energieausweis:
- Bedarfsausweis
- Energieeffizienzklasse:
- E
- Energieausweis gültig bis:
- 17.03.2027
- wesentlicher Energieträger:
- Öl
- Baujahr lt. Energieausweis:
- 2016
Ausstattungsbeschreibung:
Baujahr:1976
Wohnfläche:
ca. 78m²
Baujahr Heizung:
2016
Objekttyp:
Erdgeschosswohnung
Stellplätze:
Eine Stellplatz gehört zur Wohnung und muss zusätzlich erworben werden für €10.000,-
Befeuerung:
Öl/ Zentralheizung
Böden:
Parkett, Teppich, Fliesen
Ausstattungsqualität:
Gepflegt
Balkon:
Ja, Süd-Ost
Unterkellert:
Ja
Kelleranteil:
Ja. Zwei Stück
Wasch/ Trockenraum:
Ja
Anzahl Zimmer:
3
Anzahl Schlafzimmer:
2
Anzahl Badezimmer:
1, 2 Waschtische
Anzahl separaten WC:
1
Objektart:
Wohnen
Renovierung/ Sanierungen:
2008 - Neue Fenster doppelt isolierverglast
2008 - Rohrsanierung
2016 - eine neue Ölheizung eingebaut
2018 - neuer Zaun
2019 - neue Haustür
2021 - Bodenbelag des Balkons ausgetauscht
Verfügbar ab:
SOFORT
Sonstige Angaben:
Rechtshinweis:Da wir Objekte nicht selbst ermitteln, übernehmen wir hierfür keine Gewähr.
Sämtliche Angaben in diesem Exposé basieren auf Informationen, die uns vom Eigentümer/Vermieter genannt wurden. Wir bemühen uns, möglichst vollständige und richtige Angaben zu erhalten und weiterzuleiten. Eine Haftung für Richtigkeit und Vollständigkeit können wir jedoch nicht übernehmen.
Sie wollen mehr erfahren?
Wenn Sie uns eine Nachricht über das Kontaktformular senden, melden wir uns schnellstmöglich bei Ihnen:





































