Referenz Penthouse - Miete - Fellbach

Ihre Penthousewohnung in Fellbach

1.950 €
Fellbach
Objektart
Wohnung
Objekttyp
Penthouse
Vermarktungsart
Miete
PLZ
70736
Ort
Fellbach
Zimmer
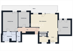
4,5
Schlafzimmer
3
Badezimmer
1
Anzahl sep. WC
1
Wohnfläche
150 m²
Kaltmiete
1.950 €
vermarktungsstatus
Referenz

Beschreibung:

Klasse 4,5-Zimmer Penthousewohnung im 4.Obergeschoss eines hausmeistergepflegten 11-Familienhauses mit Aufzug in Fellbach.

Lagebeschreibung:

Kurze Wege zum Bahnhof und zur B 29.

Ausstattung:

Energieausweis:

  • A+
  • A
  • B
  • C
  • D
  • E
  • F
  • G
  • H
0
30
50
75
100
130
160
200
250
>250
Endenergieverbrauch:
60,1 kWh/(m²a)
Energieausweis:
Verbrauchsausweis
Energieeffizienzklasse:
B
Energieausweis gültig bis:
15.11.2031
wesentlicher Energieträger:
Fernwärme
Baujahr lt. Energieausweis:
2008

Ausstattungsbeschreibung:

Die Wohnung ist mit Fliesenboden ausgestattet. Fußbodenheizung im Wohn-Esszimmer und Schlafzimmer. (Fernwärme).
Die offen gestaltete Einbauküche (Marke Leicht) verfügt über hochwertige elektrische Geräte.
Vom Wohn-Essbereich und Schlafzimmer gelangt man auf den großen Süd-Balkon mit Fernblick.
Die Rolläden sind elektrisch gesteuert.
Das Tageslichtbad hat eine Wanne, Dusche mit Duschkabine, 2 Waschbecken, WC und Waschmaschinen- und Trockneranschluß. Ein Gäste-WC steht ebenfalls zur Verfügung.
Zur Wohnung gehören im Untergeschoss 2 Abstellräume, Waschmaschinenraum, Fahrradraum und 2 Tiefgaragenstellplätze zu je € 50,-

Bezug der Wohnung ist möglich ab 01.06. oder nach Vereinbarung.

Ein kleiner Hund oder Katze ist nach Absprache erlaubt.

Sonstige Angaben:

Rechtshinweis:
Da wir Objekte nicht selbst ermitteln, übernehmen wir hierfür keine Gewähr.

Sämtliche Angaben in diesem Exposé basieren auf Informationen, die uns vom Eigentümer/Vermieter genannt wurden. Wir bemühen uns, möglichst vollständige und richtige Angaben zu erhalten und weiterzuleiten. Eine Haftung für Richtigkeit und Vollständigkeit können wir jedoch nicht übernehmen.
Lothar Deeg
Lothar Deeg
REMAX Immobilien-Pro
0160 5065 126
Jeder Lizenznehmer ist ein rechtlich eigenständiges Unternehmen und handelt auf eigene Rechnung und Verantwortung.