Beschreibung:
***Die Doppelhaushälfte wird nur bis Ende 2024 vermietet mit späterer Kaufoption.KFW 70 Haus mi modernster Ausstattung.
Das Haus hat 2 Vollgeschosse mit Pollenfilter für die Raumluft. Der Einbau eines Kaminofens ist möglich. Die Böden sind mit Laminat ausgesttatet. Bad, WC und Küche sind gefliest. Das Haus hat Fußbodenheizung und ist im Erdgeschoss mit elektrischen Rollläden ausgestattet.
UG: Großer Kellerraum, Heizraum mit Waschmaschinenstellplatz.
EG: Großer Wohn- Essbereich mit Ausgang zur Terrasse. Küche mit Einbauküche und Speisekammer. Gäste-WC.
OG: 1 Schlafzimmer, 2 Kinderzimmer (alle mit TV/Internetanschluss). Tageslichtbad mit Eckwanne, große Dusche, WC und Waschbecken.
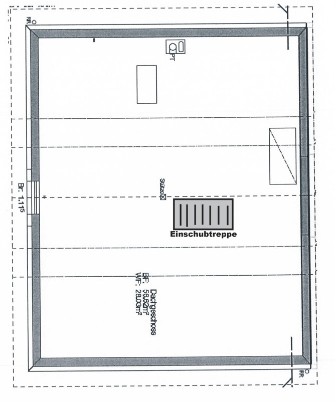
DG: 28 m² , ausbaufähig (alle Anschlüsse vorbereitet).
1 Garage (6m x 3m x 2,60m) und 2 Stellplätze am Haus.
Lagebeschreibung:
Am Ortsrand gelegen. Zu Fuß zum Bus ca. 2 Minuten.Ausstattung:
Energieausweis:
- A+
- A
- B
- C
- D
- E
- F
- G
- H
- Baujahr Objekt:
- 2013
- Endenergiebedarf:
- 25,9 kWh/(m²a)
- Energieausweis:
- Bedarfsausweis
- Energieeffizienzklasse:
- A+
- wesentlicher Energieträger:
- Luft/wasser Wärmepumpe
- Baujahr lt. Energieausweis:
- 2013
Sonstige Angaben:
Heizung: Fußbodenheizung. Luft-Wasser-Wärmepumpe mit kontrollierter Be- und Entlüftung.Streicharbeiten können bei Bedarf vorgenommen werden.
1 Wohnungskatze ist erlaubt.
Sie wollen mehr erfahren?
Wenn Sie uns eine Nachricht über das Kontaktformular senden, melden wir uns schnellstmöglich bei Ihnen:















